Rif: JJ23-BreCCx2V
CERNUSCO SUL NAVIGLIO
MILANO
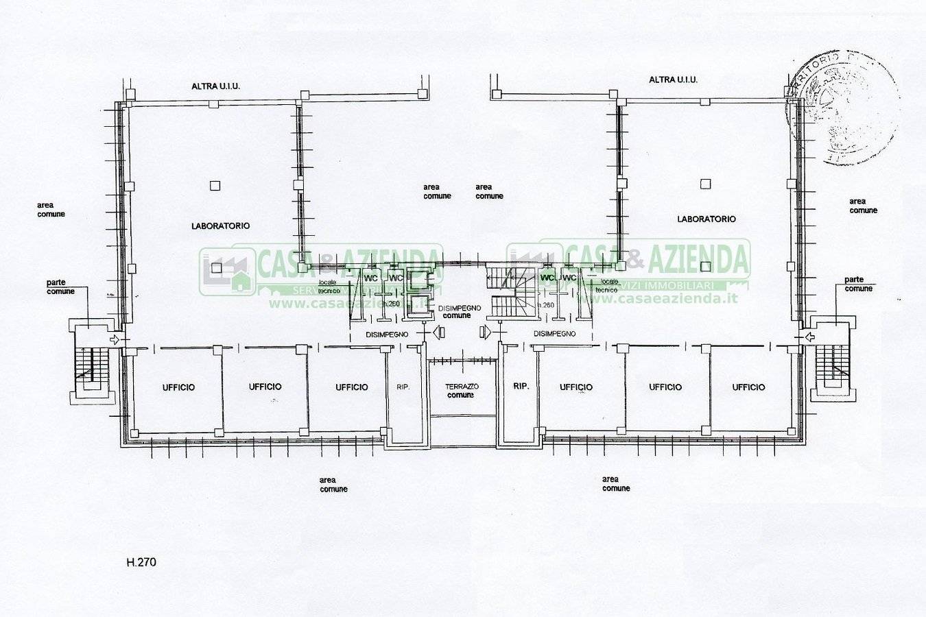
Cernusco sul Naviglio - Ufficio in vendita di 700 mq così composto: la struttura si sviluppa su unico livello, la superficie è già suddivisa in 8 ambienti oltre a 2 aree open space ed a doppio blocco servizi. Gli ambienti sono molto luminosi in quanto il blocco uffici vanta una tripla esposizione. A livello impiantistico la soluzione è dotata di impianto elettrico e di illuminazione a neon, impianto di riscaldamento e di condizionamento centralizzato, cablaggio dati LAN. Gli spazzi vengono consegnati con pareti attrezzate. Ottimo il livello di immagine dell'immobile che risulta facilmente raggiungibile dalle principali arterie stradali della zona in quanto collocato in prossimità della SS Padana Superiore, dello svincolo stradale SP 103 Cassanese che si ricollega ad Est all'autostrada BreBeMi e ad Ovest permette l'ingresso nella città di Milano Lambrate oltre ad essere facilmente raggiungibile dall'uscita Agrate dell'autostrada A4 e Carugate della Tangenziale Est. Possibilità posti auto interni.
Prezzo richiesto Eu. 700.000,00 - possibilità affitto Eu. 70.000/annui
Classe Energetica "F" IPE 58,94 kWh/m3/anno
Le informazioni contenute nel presente annuncio sono state compilate con ogni cura affinché fossero complete, tuttavia, a volte possono contenere errori e omissioni. Si declina quindi ogni responsabilità se le informazioni consultate non dovessero corrispondere al reale stato di fatto.
Per valutare altre soluzioni disponibili visitate il sito www.casaeazienda.it AGENZIA Casa&Azienda di Cernusco sul Naviglio MI La nostra agenzia è nata nel 2005 per soddisfare appieno le esigenze del territorio, in questi anni è cresciuto dal punto di vista organizzativo e qualitativo grazie all'esperienza maturata sul campo nella piazza di Cernusco sul Naviglio. L'obiettivo di oggi è quello di offrire ai nostri clienti un servizio trasparente e completo, capace di modellarsi sulle tendenze di mercato senza trascurare le esigenze personali che cambiano per ogni cliente sia esso un privato o una grande società. La nostra presenza capillare sul territorio ci consente di acquisire una profonda conoscenza del mercato immobiliare locale basata su dati oggettivi di domanda, offerta e compravenduto reale mentre la nostra rete informatica moltiplica le nostre possibilità di individuare l'immobile desiderato dal cliente o viceversa di portare all'attenzione di clienti i nostri immobili disponibili. Il nostro ufficio offre in modo indipendente la possibilità a tutte le aziende di poter verificare cosa al momento offre il mercato immobiliare, suscitare curiosità e interesse a tutte quelle realtà attuali in cui le imprese sono in continuo sviluppo ma comunque molto attente alle varie possibilità per costruire al meglio il proprio futuro. Servizio virtual tour abbinato alle planimetrie.
Prezzo richiesto Eu. 700.000,00 - possibilità affitto Eu. 70.000/annui
Classe Energetica "F" IPE 58,94 kWh/m3/anno
Le informazioni contenute nel presente annuncio sono state compilate con ogni cura affinché fossero complete, tuttavia, a volte possono contenere errori e omissioni. Si declina quindi ogni responsabilità se le informazioni consultate non dovessero corrispondere al reale stato di fatto.
Per valutare altre soluzioni disponibili visitate il sito www.casaeazienda.it AGENZIA Casa&Azienda di Cernusco sul Naviglio MI La nostra agenzia è nata nel 2005 per soddisfare appieno le esigenze del territorio, in questi anni è cresciuto dal punto di vista organizzativo e qualitativo grazie all'esperienza maturata sul campo nella piazza di Cernusco sul Naviglio. L'obiettivo di oggi è quello di offrire ai nostri clienti un servizio trasparente e completo, capace di modellarsi sulle tendenze di mercato senza trascurare le esigenze personali che cambiano per ogni cliente sia esso un privato o una grande società. La nostra presenza capillare sul territorio ci consente di acquisire una profonda conoscenza del mercato immobiliare locale basata su dati oggettivi di domanda, offerta e compravenduto reale mentre la nostra rete informatica moltiplica le nostre possibilità di individuare l'immobile desiderato dal cliente o viceversa di portare all'attenzione di clienti i nostri immobili disponibili. Il nostro ufficio offre in modo indipendente la possibilità a tutte le aziende di poter verificare cosa al momento offre il mercato immobiliare, suscitare curiosità e interesse a tutte quelle realtà attuali in cui le imprese sono in continuo sviluppo ma comunque molto attente alle varie possibilità per costruire al meglio il proprio futuro. Servizio virtual tour abbinato alle planimetrie.
Consistenze
| Descrizione | Superficie | Sup. comm. |
|---|---|---|
| Principali | ||
| Ufficio - 3° piano | 700 Mq | 700 Mqc |
| Totale | 700 Mqc | |
